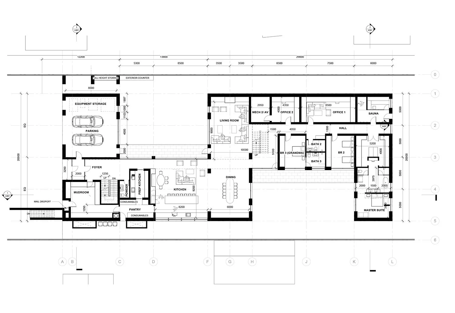
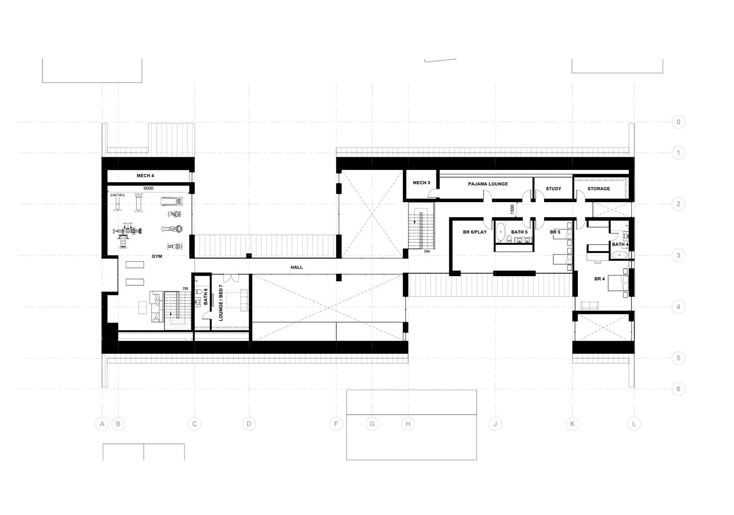
COURTYARD HOUSE
Responding to the constraints of a dense Moscow suburb and the demands of a harsh climate, the residence is conceived as an introverted sanctuary.
Turning away from the perimeter, the design cultivates its own internal landscape by carving out two substantial courtyards from a protective, elemental mass. These voids are not merely negative space, but are focal points that activate the home’s daily rhythm.
One courtyard embraces the morning sun while the other captures the late afternoon light, ensuring that central living areas are animated by natural illumination.
In the warmer months, these protected gardens dissolve the boundary between inside and out, offering a private, open-air refuge hidden from the surrounding neighborhood.
Program: Private Residence
Location: Shulgino, Russia
Area: 10,000 SF
Project Team: I. Kanda, K. Yang, A. LeBlanc
