HISTORIC HOUSE
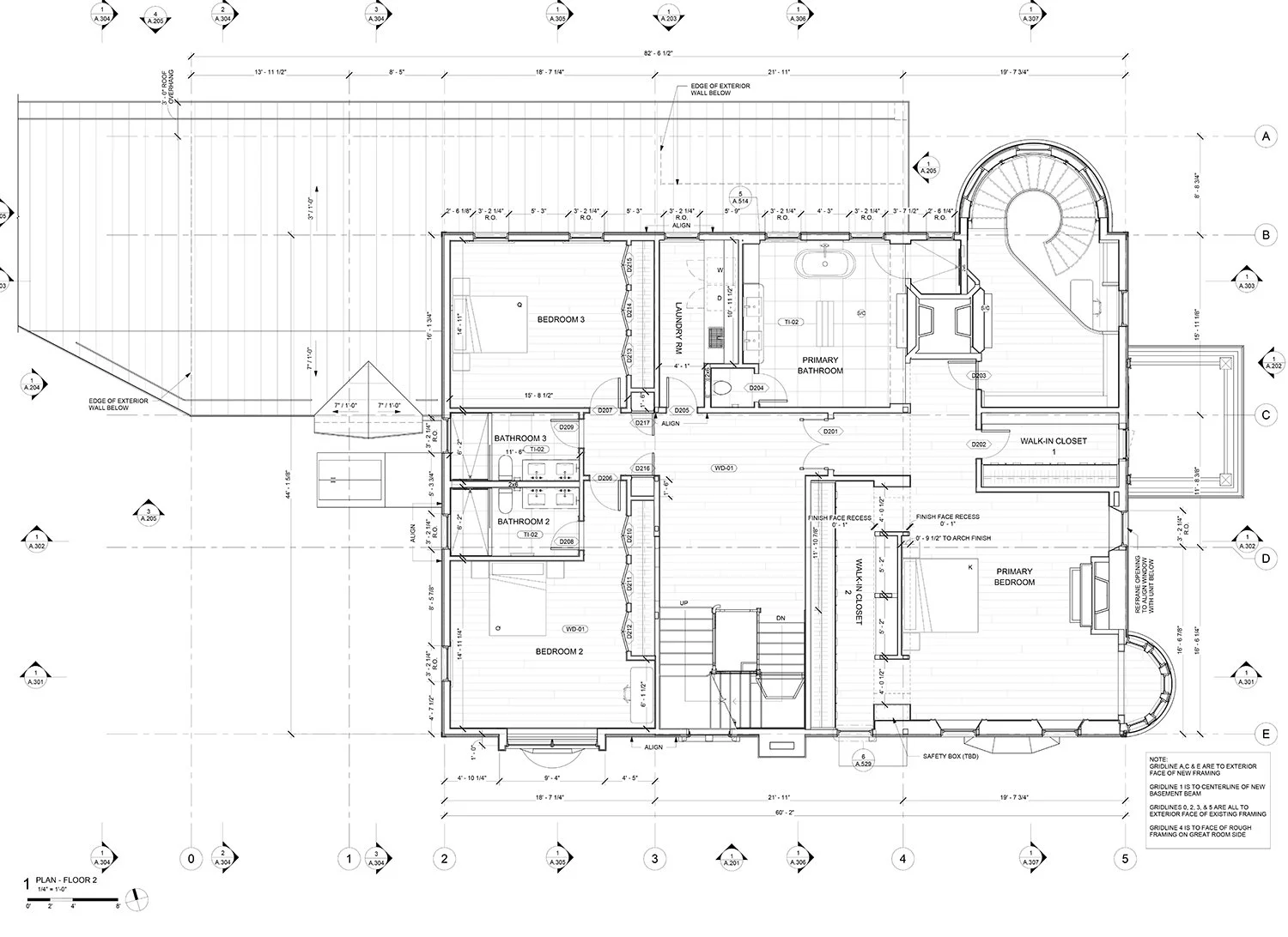
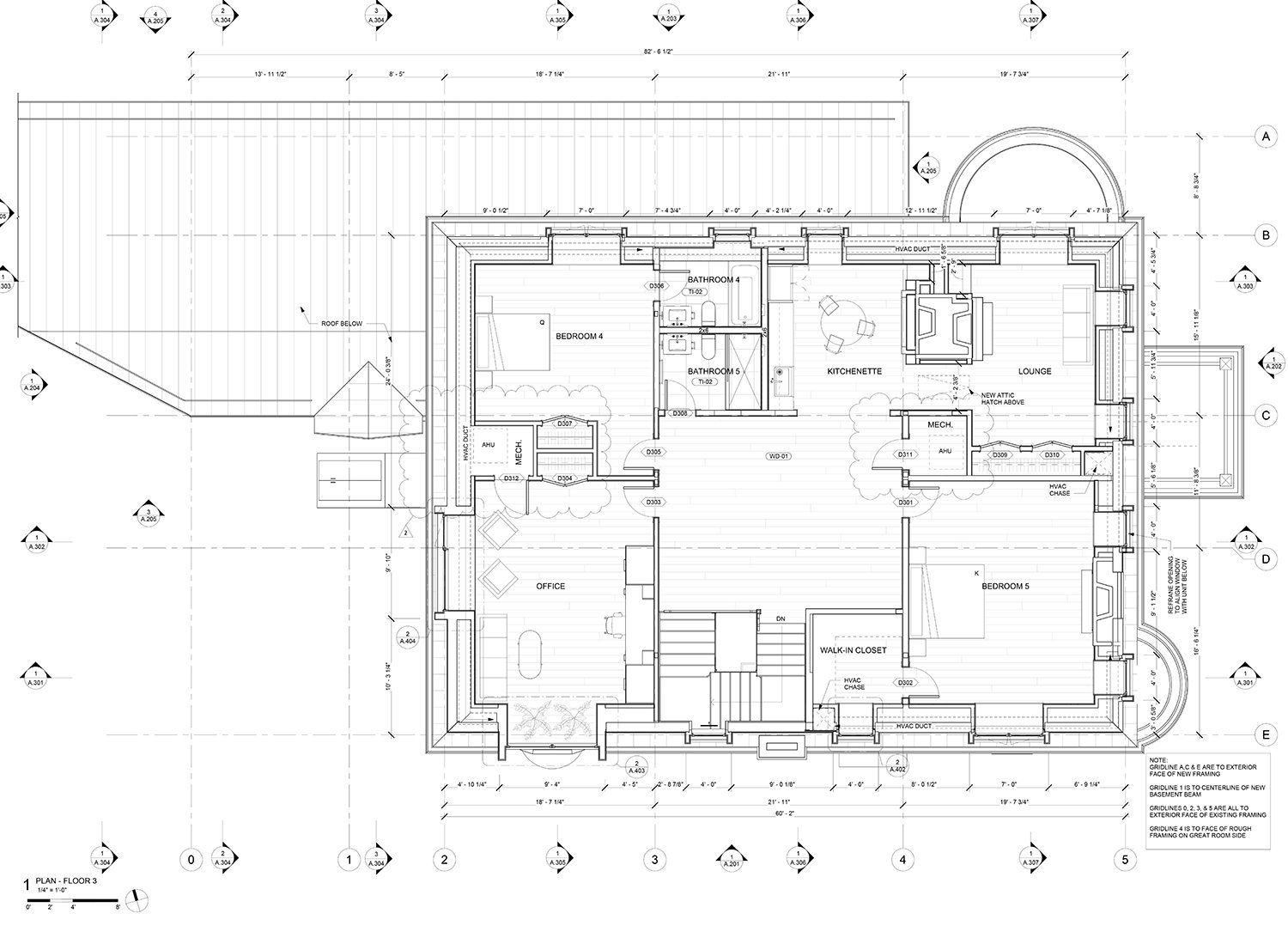
Constructed in 1873 as a country residence for a prominent Boston family, the three-storey, 8,500-square-foot mansard house contains generously proportioned principal spaces and numerous finely crafted details characteristic of its period. At the original east-facing entrance, remnants of a now-overgrown circular drive recall the horse-and-carriage approach to the front entry porch.
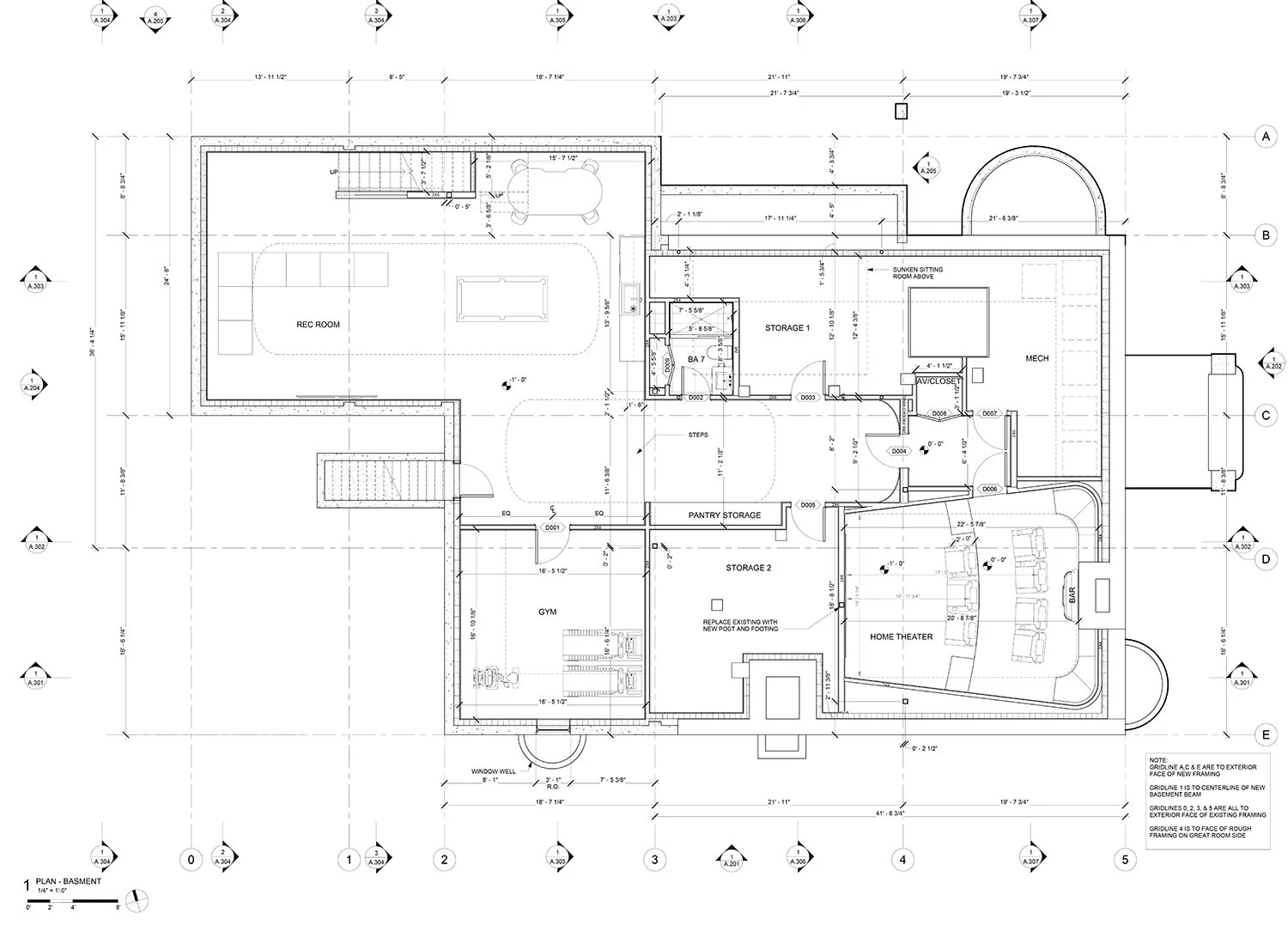
The original servants’ quarters occupy the entire rear of the structure and exhibit evidence of successive alterations undertaken to accommodate evolving patterns of domestic service. Externally, the roof geometry becomes increasingly irregular toward this portion of the house, with unresolved valleys and pitches contributing to long-standing issues of water management and maintenance. Internally, the transition from the main house to the service wing is marked by a discernible reduction in spatial clarity, finish quality, and hierarchy of circulation.
The proposed intervention involves the surgical removal of the existing west wing and its replacement with a new addition that reconciles the overall composition and better supports contemporary patterns of living. The addition continues the three-storey massing of the original structure while introducing a single-storey modern porte-cochere that combines the formal presence of a grand entry hall with the functional requirements of a covered drop-off, providing direct access to the mudroom and kitchen.
Original architectural elements are repaired or reconstructed using modern, durable materials. The building envelope is comprehensively rebuilt to achieve high levels of insulation and airtightness, with historically consistent restoration in select areas and carefully composed contemporary interventions elsewhere.
A new detached four-car garage is proposed, incorporating guest accommodations and a recording studio above, designed to complement the architectural character of the main residence while meeting the programmatic needs of a modern estate.
Program: Residence
Location: Milton, MA
Area: 11,500 SF
Project Team: I. Kanda, K.Yang, A.LeBlanc
GC: Denali Construction Corp
Structural: Denoya
