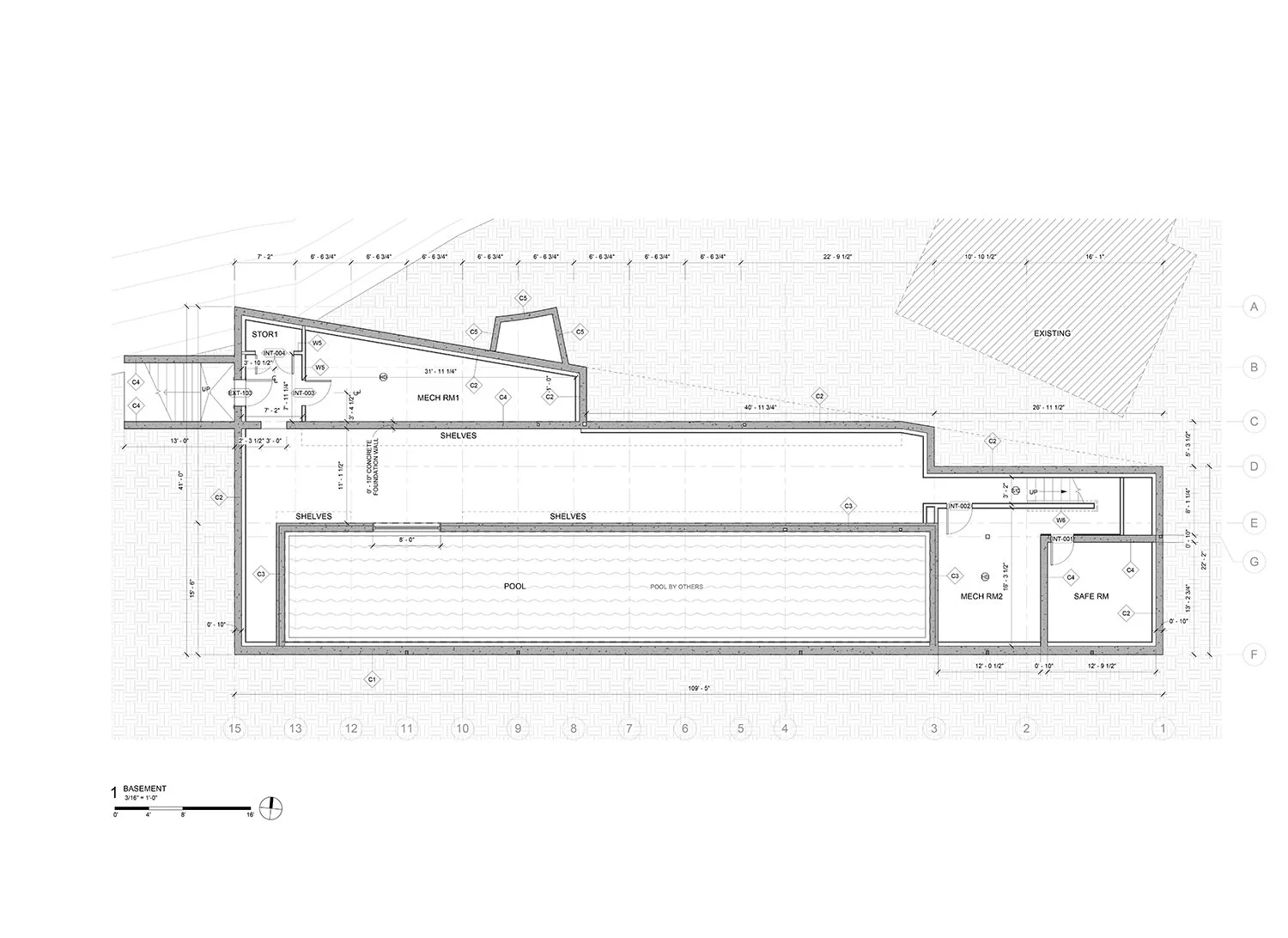
POOL HOUSE
This pool house was designed to visually sink down into the sloped site to maintain a low profile despite a full program including a 25-yard lap pool, plunge pool, hot tub, changing rooms, lofted play room, and accessible sleeping quarters with a kitchenette.
Program: Pool House
Location: Lincoln, MA
Area: 4,000 SF
Structural: Seigel Structural Engineers
Project Team: I. Kanda, S. Chun, K. Yang
