ZIG-ZAG HOUSE
Designed to evolve with the needs of a multi-generational family, this waterfront home balances intimacy and openness through its thoughtful form and siting.
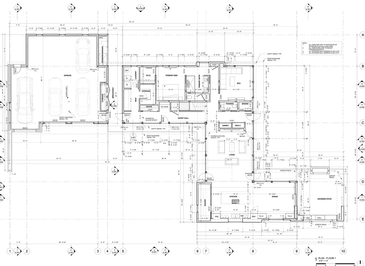
The wedge-shaped buildable area of the lot is constrained by a prominent diagonal view easement—narrowing the possible footprint as the home extends closer to the water’s edge.
The massing is a zig-zagging linear structure that is strategically positioned to enhance panoramic ocean views even as the width of facade decreases toward the shoreline. The home maximizes both views and square footage while remaining grounded in its coastal context and contemporary spatial logic.
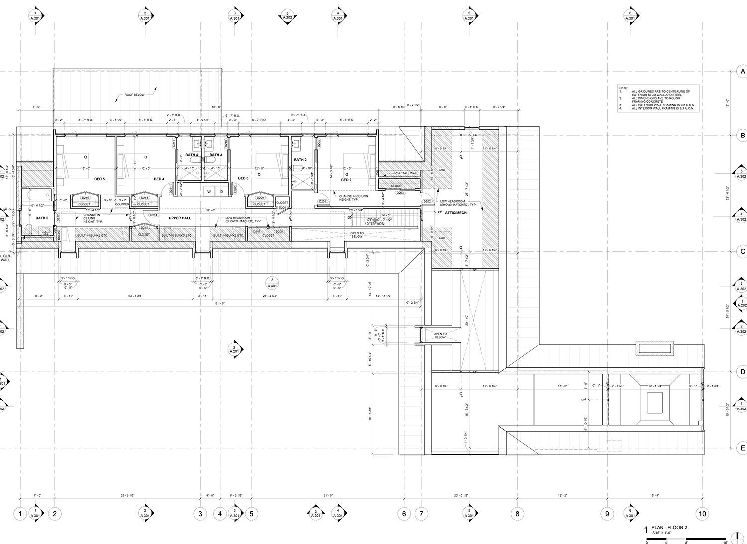
Arrival is marked by an entry courtyard framed by an L-shaped wing containing a spacious garage and ample bedrooms for children, grandchildren, and guests.
On the ocean side, a mirrored L-shaped wing opens toward the horizon, housing the main living, dining, and entertaining spaces. These areas flow seamlessly to the patio and pool deck beyond, creating a continuous connection between interior comfort and the natural beauty of the waterfront.
Program: Residence
Location: Dartmouth, MA
Project Team: I. Kanda, A. LeBlanc, K. Yang
Area: 4,000 SF
